造型线

1、机械化造型线:是批量生产型铸造企业较理想的优选设备。它具有投资少、见效快、降低劳动强度、提高铸件质量、易掌握好维护、故障率低、运行成本低等特点。
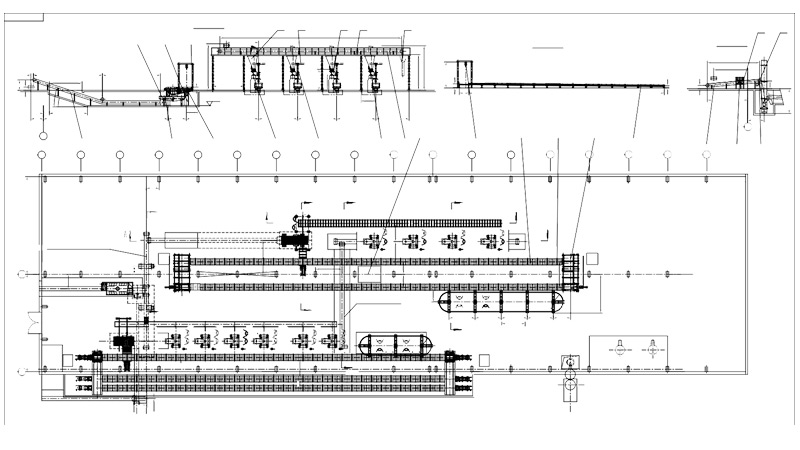
此种造型线采用气垫微震压实造型机(可采用多台造型机)造型,铸型输送机 输送铸型进行浇注和冷却。工人通过气吊搬运砂箱和砂型,人工在线上完成下芯、合箱,合箱后的铸型在浇注段由浇注环轨上的吊包完成浇注,之后进入冷却段。经冷却后的铸型由推箱机推入落砂机落砂。铸件人工转入下序,砂箱进入回箱输送辊道送至造型工位,旧砂进入砂处理系统。
2、机械化半自动造型线:可通过采用部分辅机实现半自动化生产。整个造型段可通过辊道和翻箱机、提箱机、合箱机、砂箱转向机、取放压铁机、推箱机、捅箱机、等辅机联接起来。此种造型线操作更方便快捷,布置更规范。

| 上一页: 造型线 | 下一页: 造型线 |



